Heitling Fahrzeugbau | Heitling Anlagenbau | Huning Umwelttechnik
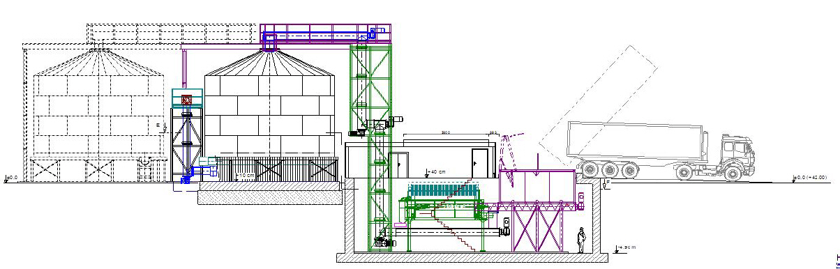
Receiving and silo plant
We already moved into our new, modern company headquarters (more information here).Our new address is:Huning MaschinenbauWellingholzhausener Str. 649324 Melle
Permanent exhibition at the Landwirtschaftszentrum (Agricultural Centre) Eichhof/Bad Hersfeld